
“Alka” – museum of Lithuanian Samogitian ethnographic region.
Samogitian Museum "Alka" – the most important museum of the history of the Samogitian (Žemaitijos) ethnographic region of the Republic of Lithuania, located in Telšiai. It most comprehensively reveals the unique development of Samogitian history, introduces visitors to the nature of this region, the daily life of its people, and its rich collection of artworks.
The Samogitian Museum "Alka", operating for more than 90 years, was officially established on February 16, 1932. The founding of the museum is associated with the poet and museologist Pranas Genys. In 1931, he founded the local lore society "Alka" in Telšiai, and in 1932 – the "Alka" Museum, where he served as its head until 1945. The museum building was constructed in 1938, designed by architect Steponas Stulginskis, and was reconstructed in 1998 according to the project of architect Algirdas Žebrauskas.
Currently, the museum's collections contain a large number of exhibits, ranging from archaeological finds to contemporary art. The museum collects, preserves, restores, researches, exhibits, and promotes the material and spiritual culture and natural heritage of Samogitia.
“Alka” reconstruction
In September 2024, after a five-year break and ongoing reconstruction, the "Alka" Museum reopened its doors to visitors. During the project, the building of the Samogitian Museum "Alka" was renovated, modern exhibitions and storage facilities for exhibits were installed. Upon completion of the project, the quality of services provided by the Samogitian Museum "Alka" will be improved, and the museum building has been adapted to meet the needs of visitors.
It was a great honor to contribute to the renewal of the exhibition. In collaboration with the architects WALL, the DADADA studio developed the concept, architecture, and design of the museum exhibition.
INTERWAR MODERNISM MEETS CONTEMPORARY DESIGN
The interior redesign of the Žemaitija Museum "Alka" in Telšiai skillfully bridges interwar modernism with contemporary exhibition design. Respecting the original 1937 functionalist architecture, the new interventions are minimalist and reversible, preserving the building’s spatial rhythm and material authenticity. The result is a calm, refined interior—modern, yet deeply rooted in regional identity—where design serves both conservation and storytelling.
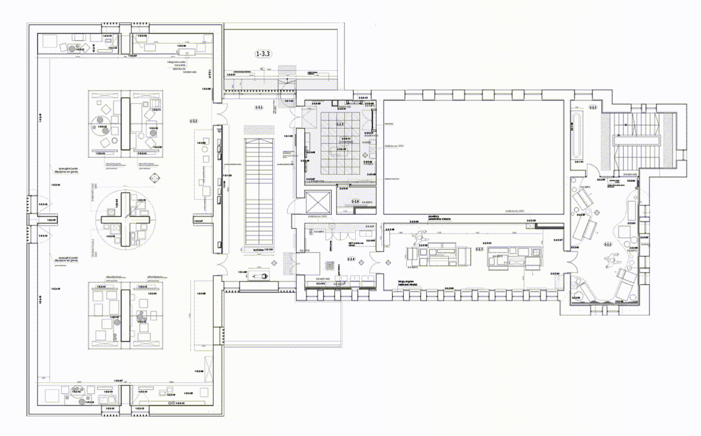
SPATIAL STORYTELLING
Gallery layouts have been restructured to intuitively guide visitors through the collection, using floating vitrines, warm wood finishes, and discreet lighting to highlight artifacts without overwhelming the space. Digital media and interpretive elements are seamlessly integrated into custom furnishings, maintaining architectural clarity and coherence.

CURATED SENSATIONS
Each exhibition room has been designed with a distinct mood, color palette, and even soundscape—carefully tailored to its specific theme and curated to spotlight unique exhibits. This sensory layering allows every space to evoke a different emotional and intellectual response. As visitors move from room to room, they encounter a carefully orchestrated sequence of atmospheres and feel the essence of Samogitian culture on a deeper, more intuitive level.
Museum: Samogitian museum „Alka"
Exhibition design and architecture: DADADA studio and Wall architects
Photography: Norbert Tukaj, Martynas Birškys